Ref. 7286810

nieuw

Bekijk 32 foto's

€ 112.999

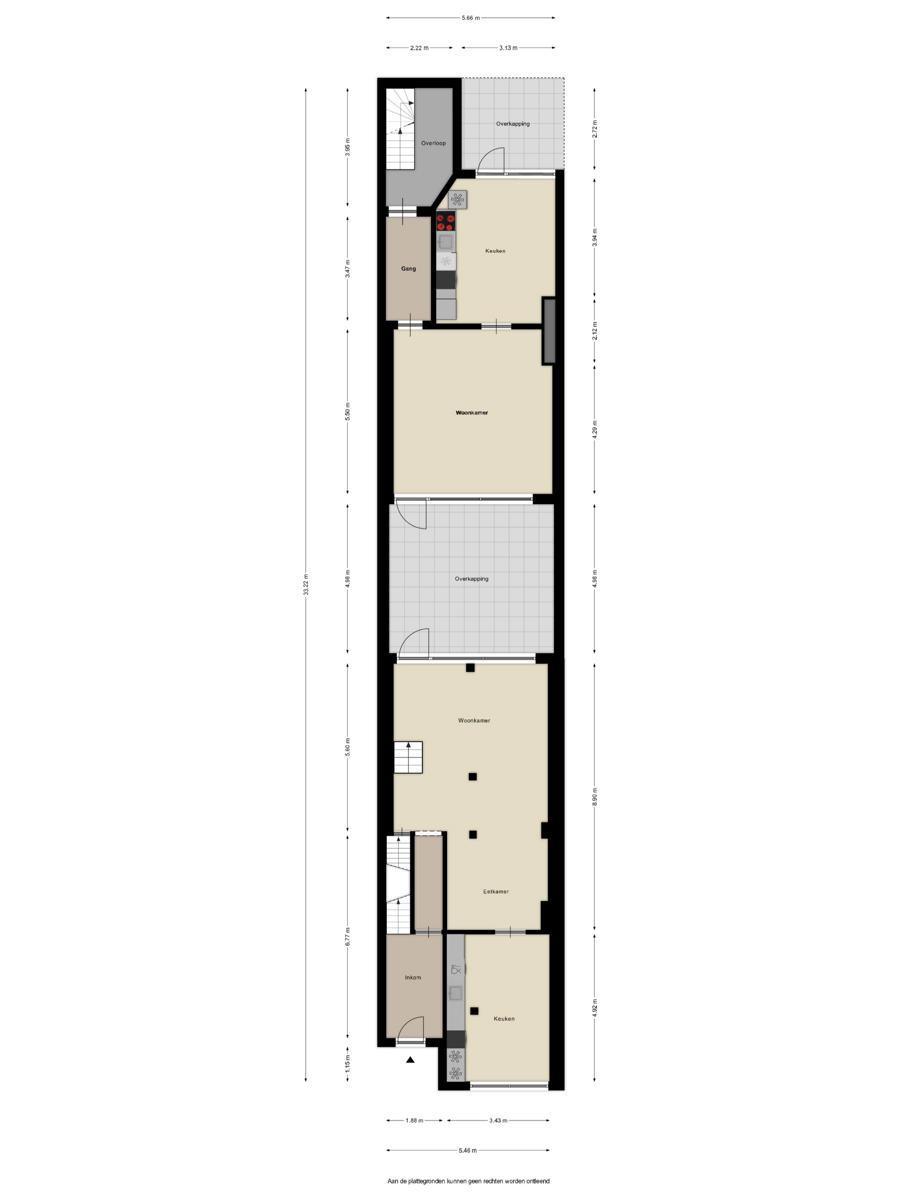
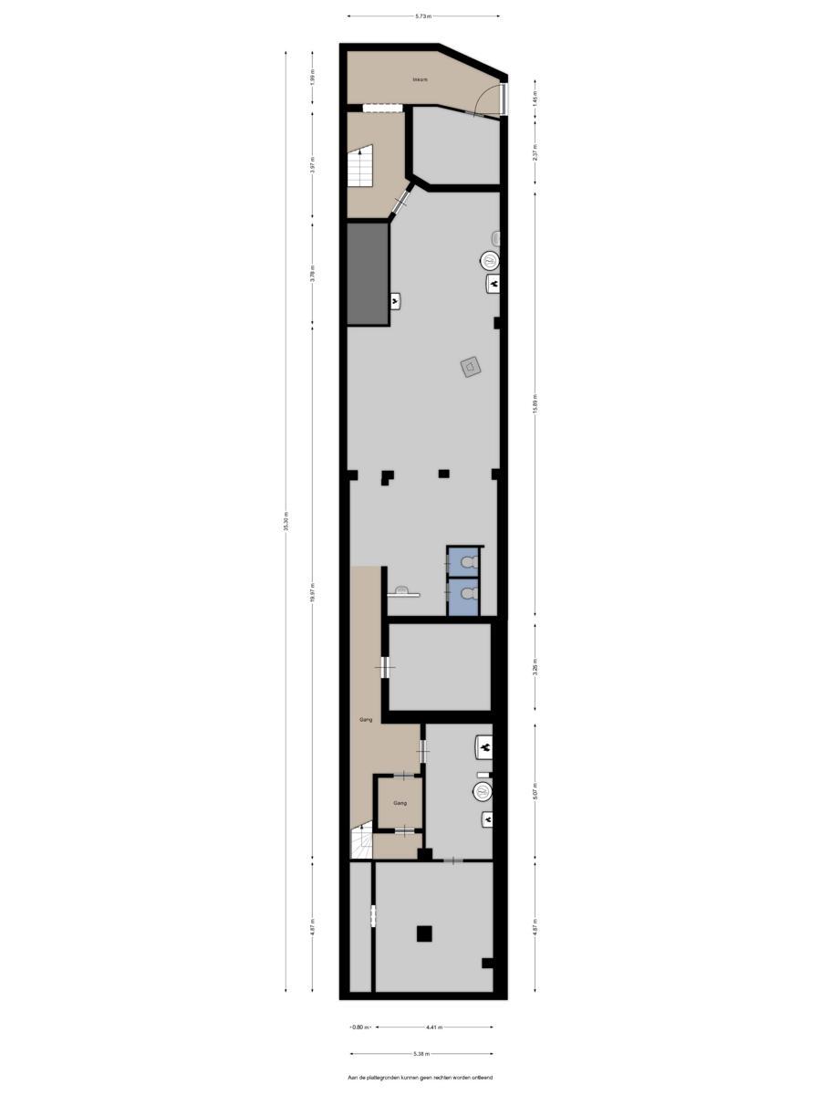
113 m2

Ref. 7286810